Koggen Makelaars

Adres Karperhof 5
1633 DR Averhorn
E-mail info@koggenmakelaars.nl Telefoon 0229 - 540987 Website www.koggenmakelaars.nl

Vijverhof 76,

 

Avenhorn

verkocht

Vijverhof 76, Avenhorn

Kenmerken

Type appartement
Bouwjaar
2008
Woonoppervlakte
75 m²
Kamers
3
Slaapkamers
2
Perceeloppervlakte
0 m²
Inhoud
220 m³
Aanvaarding
in overleg

Omschrijving

Bieden vanaf € 385.000,-- k.k.
Wonen bij de winkels! Boven winkelcentrum Vijverhof komt een 3-kamerappartement, gelegen in appartementengebouw De Zilverlelie te koop. Het appartement - op de tweede etage met wellicht het mooiste uitzicht ! - is zowel per trap als per lift bereikbaar en via een half open galerij komt u bij het appartement. Op de begane grond bij de centrale entree treft u de brievenbussen en een bellentableau en via deze centrale entree bereikt u tevens de fietsberging. Betreffende berging is ca. 4 m² groot. Het appartement heeft o.a. 2 slaapkamers, een ruime badkamer en een heerlijk lichte woonkamer voorzien van schuifpui met toegang naar balkon. Wordt u de nieuwe bewoner van dit fijne appartement?

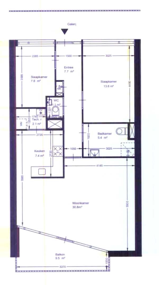
Indeling
Entree/gang met toegang naar 2 slaapkamers waarvan 1 voorzien van vaste kasten, meterkast, toilet en badkamer met wastafel en douchehoek. Lichte woonkamer met schuifpui naar balkon, halfopen keuken voorzien van diverse inbouwapparatuur.
Berging met C.V. opstelling.

Balkon
Heerlijk zonnig balkon.

Bijzonderheden
- Mooi vrij zicht vanuit de woonkamer !
- Boven winkelcentrum Vijverhof
- Lift en trap aanwezig
- Servicekosten € 105,-- per maand

Foto's

Vijverhof 76, Avenhorn
Vijverhof 76, Avenhorn
Vijverhof 76, Avenhorn
Vijverhof 76, Avenhorn
Vijverhof 76, Avenhorn
Vijverhof 76, Avenhorn
Vijverhof 76, Avenhorn
Vijverhof 76, Avenhorn
Vijverhof 76, Avenhorn
Vijverhof 76, Avenhorn
Vijverhof 76, Avenhorn
Vijverhof 76, Avenhorn
Vijverhof 76, Avenhorn
Vijverhof 76, Avenhorn
Vijverhof 76, Avenhorn
Vijverhof 76, Avenhorn
Vijverhof 76, Avenhorn
Vijverhof 76, Avenhorn
Vijverhof 76, Avenhorn
Vijverhof 76, Avenhorn
Vijverhof 76, Avenhorn
Vijverhof 76, Avenhorn
Vijverhof 76, Avenhorn
Vijverhof 76, Avenhorn
Vijverhof 76, Avenhorn
Vijverhof 76, Avenhorn
Vijverhof 76, Avenhorn
Vijverhof 76, Avenhorn
Vijverhof 76, Avenhorn
Vijverhof 76, Avenhorn
Vijverhof 76, Avenhorn
Vijverhof 76, Avenhorn
Vijverhof 76, Avenhorn
Vijverhof 76, Avenhorn

Plattegrond