Koggen Makelaars

Adres Karperhof 5
1633 DR Averhorn
E-mail info@koggenmakelaars.nl Telefoon 0229 - 540987 Website www.koggenmakelaars.nl

Vijverhof 48,

 

Avenhorn

verkocht

Vijverhof 48, Avenhorn

Kenmerken

Type appartement
Bouwjaar
2009
Woonoppervlakte
76 m²
Kamers
2
Slaapkamers
2
Perceeloppervlakte
0 m²
Inhoud
240 m³
Aanvaarding
in overleg

Omschrijving

Geen bezichtigingen meer mogelijk!! Let op: bieden vanaf € 219.500,-- k.k.
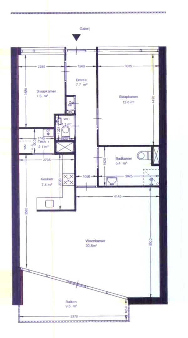
Wonen bij de winkels! Boven winkelcentrum Vijverhof komt een 3-kamerappartement gelegen in appartementengebouw De Zilverlelie te koop. Het appartement - op de eerste etage - is zowel per trap als per lift bereikbaar en via een half open galerij komt u bij het appartement. Op de begane grond bij de centrale entree treft u de brievenbussen en een bellentableau en via deze centrale entree bereikt u tevens de fietsbergingen, betreffende berging is ca. 4 m² groot.

Indeling
Entree/gang met toegang naar 2 slaapkamers, meterkast, toilet en ruime badkamer met douchehoek. Lichte woonkamer met toegang naar balkon, eenvoudige hoekkeuken, wasruimte met c.v. opstelling

Bijzonderheden
- Overdracht dient plaats te vinden bij Appel Notarissen te Obdam
- Boven winkelcentrum Vijverhof
- Lift aanwezig
- Servicekosten € 105,-- per maand

Foto's

Vijverhof 48, Avenhorn
Vijverhof 48, Avenhorn
Vijverhof 48, Avenhorn
Vijverhof 48, Avenhorn
Vijverhof 48, Avenhorn
Vijverhof 48, Avenhorn
Vijverhof 48, Avenhorn
Vijverhof 48, Avenhorn
Vijverhof 48, Avenhorn
Vijverhof 48, Avenhorn
Vijverhof 48, Avenhorn
Vijverhof 48, Avenhorn
Vijverhof 48, Avenhorn
Vijverhof 48, Avenhorn
Vijverhof 48, Avenhorn
Vijverhof 48, Avenhorn
Vijverhof 48, Avenhorn
Vijverhof 48, Avenhorn
Vijverhof 48, Avenhorn
Vijverhof 48, Avenhorn
Vijverhof 48, Avenhorn
Vijverhof 48, Avenhorn
Vijverhof 48, Avenhorn
Vijverhof 48, Avenhorn
Vijverhof 48, Avenhorn
Vijverhof 48, Avenhorn
Vijverhof 48, Avenhorn
Vijverhof 48, Avenhorn
Vijverhof 48, Avenhorn
Vijverhof 48, Avenhorn
Vijverhof 48, Avenhorn
Vijverhof 48, Avenhorn
Vijverhof 48, Avenhorn
Vijverhof 48, Avenhorn

Plattegrond