Koggen Makelaars

Adres Karperhof 5
1633 DR Averhorn
E-mail info@koggenmakelaars.nl Telefoon 0229 - 540987 Website www.koggenmakelaars.nl

Timothee 26,

 

De Goorn

verkocht

Timothee 26, De Goorn

Kenmerken

Type woonhuis
tussenwoning
Bouwjaar
2007
Woonoppervlakte
102 m²
Kamers
5
Slaapkamers
3
Perceeloppervlakte
140 m²
Inhoud
340 m³
Aanvaarding
in overleg

Omschrijving

Geen bezichtigingen meer mogelijk !
Let op: Bieden vanaf € 249.500,-- k.k.

Schaars goed momenteel! Een te koop staande tussenwoning! Koggen Makelaars mag u deze tussenwoning, gelegen in de populaire woonwijk De Burghtlanden aanbieden. De courante woning staat aan de Timothee, dichtbij de vele voorzieningen van De Goorn/Avenhorn en biedt de nieuwe bewoners een aantal opties om het woonhuis nog meer na het zin te maken. Achter de woning zijn al een aantal palen geheid om eventueel een uitbouw te realiseren en op de 2e verdieping is al een kamer gemaakt waar alleen nog een groot dakraam geplaats hoeft te worden om te kunnen gebruiken als 4e slaapkamer.

Indeling
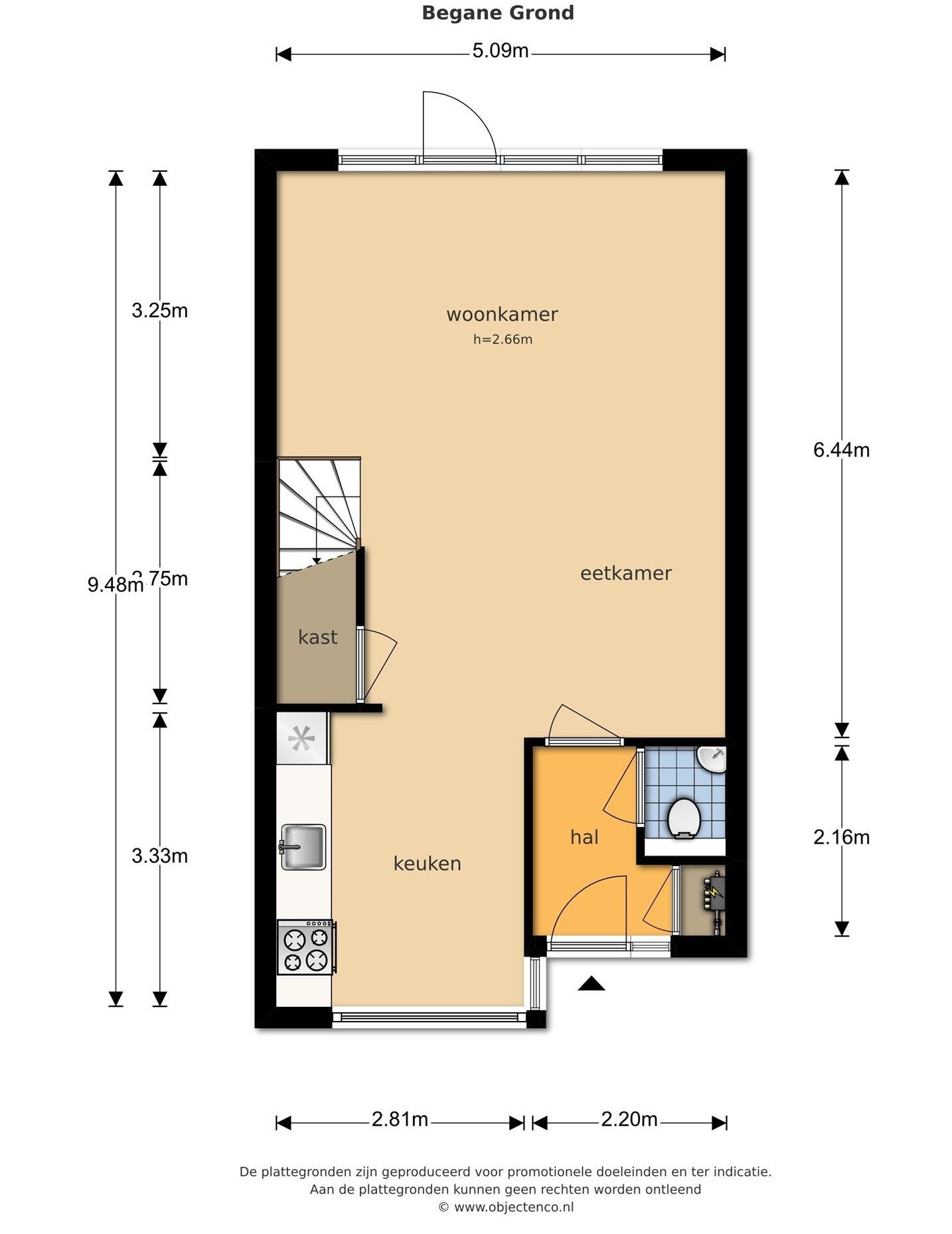
Begane grond:
Entree/hal met meterkast en toilet, keuken in rechte opstelling voorzien van gaskookplaat, combi magnetron/oven/grill, afzuigkap en vaatwasser, woonkamer met trapkast en trapopgang.

Eerste verdieping
Overloop, 3 slaapkamers, waarvan 2 met ladekasten, badkamer voorzien van douchehoek, 2e toilet en wastafelmeubel.

Tweede verdieping
Vaste trap naar 2e verdieping met bergruimte, CV opstelling, wasmachineaansluiting en mogelijkheid voor 4e slaapkamer.

Bijzonderheden
- Nabij A7 en Westfrisiaweg
- Heipalen voor uitbouw zijn aanwezig

Foto's

Timothee 26, De Goorn
Timothee 26, De Goorn
Timothee 26, De Goorn
Timothee 26, De Goorn
Timothee 26, De Goorn
Timothee 26, De Goorn
Timothee 26, De Goorn
Timothee 26, De Goorn
Timothee 26, De Goorn
Timothee 26, De Goorn
Timothee 26, De Goorn
Timothee 26, De Goorn
Timothee 26, De Goorn
Timothee 26, De Goorn
Timothee 26, De Goorn
Timothee 26, De Goorn
Timothee 26, De Goorn
Timothee 26, De Goorn
Timothee 26, De Goorn
Timothee 26, De Goorn
Timothee 26, De Goorn
Timothee 26, De Goorn
Timothee 26, De Goorn
Timothee 26, De Goorn
Timothee 26, De Goorn
Timothee 26, De Goorn
Timothee 26, De Goorn
Timothee 26, De Goorn
Timothee 26, De Goorn
Timothee 26, De Goorn
Timothee 26, De Goorn
Timothee 26, De Goorn
Timothee 26, De Goorn
Timothee 26, De Goorn
Timothee 26, De Goorn

Plattegrond

Plattegrond

Plattegrond