 
				 
					Let op: Bieden vanaf € 369.500,-- k.k.
Voor wie op zoek is naar een prachtige twee onder een kap woning is de woning gelegen aan de Meerval 11 te Avenhorn een absolute aanrader! Deze 2/1 kapper is aan de achterzijde uitgebouwd waardoor de nieuwe eigenaar straks over een heerlijke lichte woonkamer beschikt. Vorig jaar is o.a. de woonkamer professioneel onder handen genomen door een bekende lokale interieurinrichter. Op de verdieping is in 2017 de badkamer vernieuwd. Verder, de heerlijke tuin kent een zonnige ligging en beschikt over een grote veranda. Wilt u meer weten over deze woning? Bekijk de foto's , die spreken voor zich!!
Indeling
Entree/hal met meterkast/bergkast en toegang naar garage/berging welke van binnenuit bereikbaar is. Aan de straatkant van de woning treft u de moderne keuken voorzien van inbouwapparatuur en een 5- pits fornuis met oven. Aan de achterzijde is in het jaar 2000 een uitbouw gerealiseerd waardoor er een royale, tuingerichte woonkamer is gerealiseerd voorzien van openslaande tuindeuren. Hal met trapopgang en ruim, modern toilet.
Eerste verdieping
Ruime overloop, 3 slaapkamers waarvan 2 met vaste kastruimte. In 2017 is de badkamer vernieuwd en deze is voorzien van vloerverwarming, designradiator, 2e toilet, badkamermeubel en ruime douchehoek.
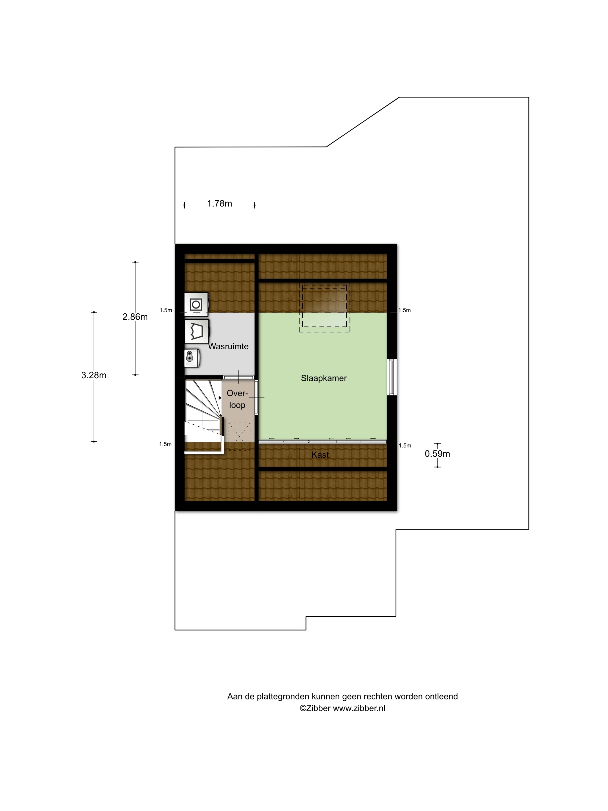
Tweede verdieping
Vaste trap naar 2e verdieping met c.v. opstelling, wasmachineopstelling en bergruimte, 4e slaapkamer met vaste kastruimte.
Bijzonderheden
- Nabij de vele voorzieningen van Averhorn/ De Goorn zoals winkelcentrum Vijverhof, scholen, zwembad, etc.
- Nabij de Westfrisiaweg en A7
- Voortuin in 2016 aangelegd
 
					 
					 
					 
					 
					 
					 
					 
					 
					 
					 
					 
					 
					 
					 
					 
					 
					 
					 
					 
					 
					 
					 
					 
					 
					 
					 
					 
					 
					 
					 
					 
					 
					 
					 
					 
					 
					 
					 
					 
					 
					 
					 
					 
							 
							