 
				 
					Let op: bieden vanaf € 449.000,-- k.k.
Eigenlijk hoeft er bij deze woning geen tekst. Bekijk de foto's en je weet, dit is een unieke woning! Toch een klein verhaaltje. Te koop, een niet alledaagse vrijstaande woning op een toplocatie. Aan vaarwater, tuin op het zuidwesten, nabij de vele voorzieningen van Avenhorn en De Goorn.
De woning kenmerkt zich door een bijzondere bouwstijl met veel glas. Ook de indeling is verre van standaard te noemen (zie foto's en tekeningen). Vanuit de lichte woonkamer is er direct contact met tuin en het water. Er is een zitkamer met 2 schuifpuien en de deuren van de eetkamer naar het terras kunnen geheel open. Er is een open keuken waardoor er direct contact is met zowel de woon- alswel de eetkamer. op de verdieping treft u naast de badkamer 4 slaapkamers en een dakterras. Wilt u meer weten, bel dan voor een bezichting.
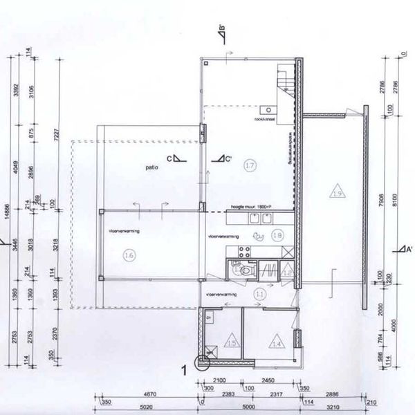
Indeling
Entree/hal met toegang naar berging, wasruimte, toilet, garderobekast en meterkast. Grote keuken met apparatuur en groot werkblad. Eetkamer, woonkamer met rookkanaal, trapopgang. 
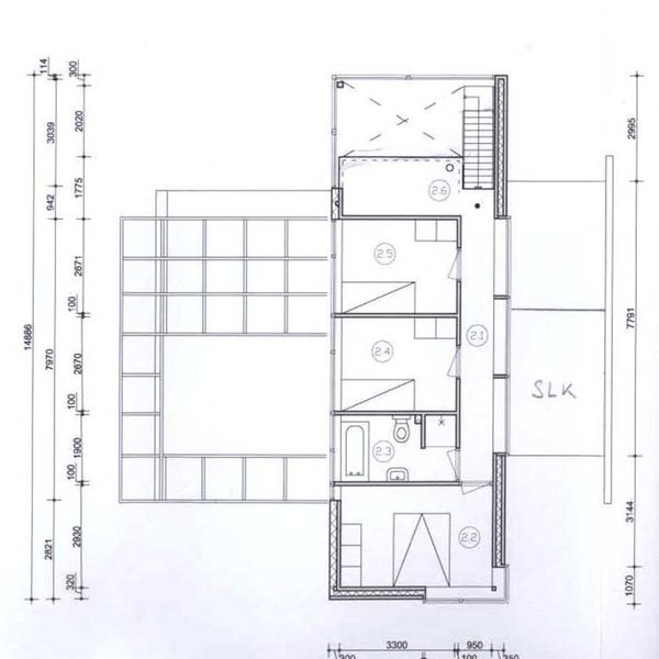
Eerste verdieping
Vide, gang met toegang naar 4 slaapkamers (waarvan 1 met dakterras) en de badkamer welke beschikt over een wastafel, ligbad, 2e toilet en douchecabine.
Tuin
De royale – speels aangelegde - tuin op het zuidwesten is gelegen aan vaarwater en herbergt diverse terrassen op verschillende niveaus en een buitenkeuken met stenen pizza-oven.
Bijzonderheden
- Gelegen aan vaarwater
- In de tuin staat een pizza oven
- Grote garage
- Vloerverwarming en wandverwarming
- 14 Zonnepanelen
- Keuken ca. 2 jaar oud
- Nabij voorzieningen zoals winkelcentrum, scholen, enz
 
					 
					 
					 
					 
					 
					 
					 
					 
					 
					 
					 
					 
					 
					 
					 
					 
					 
					 
					 
					 
					 
					 
					 
					 
					 
					 
					 
					 
					 
					 
					 
					 
					 
					 
					 
					 
					 
					 
					 
					 
					 
					 
					 
					 
					 
					 
					 
					 
					 
					 
					 
					