 
				 
					Op de 2e verdieping van het kleinschalig appartementencomplex de "Elft" te Avenhorn is een 3 kamerappartement te koop gekomen, nummer 17. Dit appartement biedt u ruim zicht, goede parkeergelegenheid en veel voorzieningen in de nabijheid waaronder winkelcentrum Vijverhof. Het eenvoudige appartement is middels een lift en trappenhuis bereikbaar. Op de begane grond is een aparte berging aanwezig.
Indeling
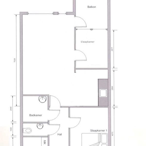
Entree/gang met c.v/wasruimte, meterkast, toilet , badkamer met douche en ruime slaapkamer. Lichte woonkamer met toegang naar zonnig balkon, eenvoudige keuken en 2e slaapkamer.
Balkon
Zonnig balkon.
Bijzonderheden
- Voorzien van intercom
- Aanwezigheid lift
- Plattegrond ter illustratie (hier kunnen geen rechten aan ontleend worden)
 
					 
					 
					 
					 
					 
					 
					 
					 
					 
					 
					 
					 
					 
					 
					 
					 
					 
					 
					 
					 
					 
					 
					 
					 
					 
					