 
				 
					Voor wie op zoek is naar een uitgebouwde 2/1 kapwoning met garage, is Dorsvlegel 63 in De Goorn misschien wel de ideale woning. Aan de achterzijde is de woning behoorlijk uitgebouwd dus de nieuwe eigenaar beschikt straks over voldoende leefruimte. Ook op de eerste verdieping is er verbouwd, aan de achterzijde is een brede dakkapel geplaatst waardoor er in de achterslaapkamer meer ruimte gerealiseerd is. En, houdt u van koken? In 2017 is er een nieuwe keuken geplaatst! Nog meer te vermelden? Wat dacht u van een binnendoor bereikbare garage/berging, een zonnige tuin, veel voorzieningen in de buurt en parkeergelegenheid op eigen terrein! Begint het al te kriebelen ...?
Indeling
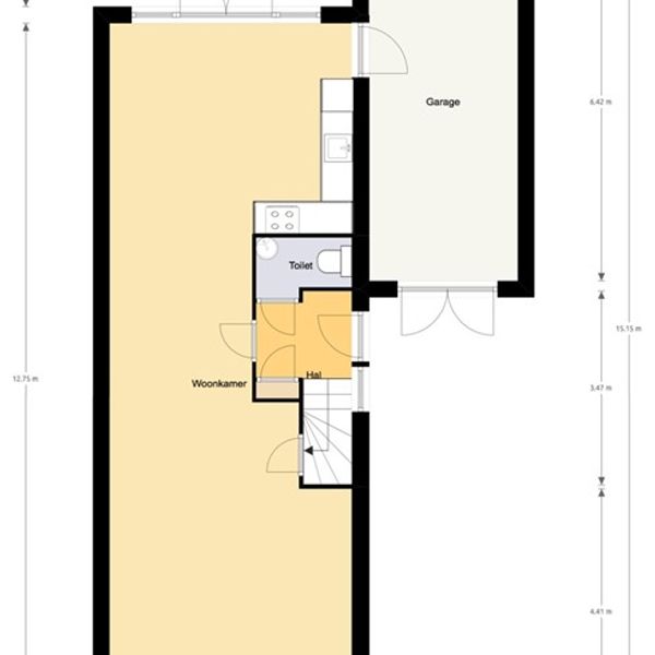
Entree/hal met meterkast, ruim toilet en trapopgang. Grote, uitgebouwde woonkamer met bergkast, rookkanaal en openslaande tuindeuren. Moderne keuken ( 2017) voorzien van inbouwapparatuur, o.a. vaatwasser, 5 pits gaskookplaat en combi oven. Toegang naar garage/berging.
Eerste verdieping
Overloop, 2 royale slaapkamers waarvan 1 met brede dakkapel. Badkamer met douchehoek, 2e toilet, designradiator en wastafelmeubel.
Tweede verdieping
Vaste trap naar 2e verdieping, alwaar de mogelijkheid voor een 3e slaapkamer. 
Overige verdiepingen
Wegzetzolder.
Tuin
Zonnige tuin met berging.
Bijzonderheden
- Royale woonruimte op de begane grond
- Keuken 2017
- Zonnige tuin
- Nabij scholen, winkelcentrum Vijverhof, zwembad, bibliotheek, etc.
- Goede ontsluiting naar Westfrisiaweg en de A7
- Plattegrond ter illustratie (aan de maten kunnen geen rechten ontleend worden)
 
					 
					 
					 
					 
					 
					 
					 
					 
					 
					 
					 
					 
					 
					 
					 
					 
					 
					 
					 
					 
					 
					 
					 
					 
					