Koggen Makelaars

Adres Karperhof 5
1633 DR Averhorn
E-mail info@koggenmakelaars.nl Telefoon 0229 - 540987 Website www.koggenmakelaars.nl

Buitenhof 30,

 

De Goorn

verkocht

Buitenhof 30, De Goorn

Kenmerken

Type woonhuis
2-onder-1-kapwoning
Bouwjaar
1988
Woonoppervlakte
132 m²
Kamers
5
Slaapkamers
3
Perceeloppervlakte
219 m²
Inhoud
453 m³
Aanvaarding
in overleg

Omschrijving

Let op: Bieden vanaf € 349.500,-- k.k.
Wonen in het centrum van Koggenland en toch heerlijk rustig wonen? Dat kan op de Buitenhof 30 in De Goorn! In een rustig hofje met alleen bestemmingsverkeer staat deze royale, fors uitgebouwde 2/1 kap woning te wachten op de nieuwe bewoners. En deze woning heeft de volgende eigenaren veel te bieden!! Zonder volledig te willen zijn noemen we o.a. een heerlijke vergrote woonkamer met openslaande tuindeuren, een ruime keuken in hoekopstelling voorzien van inbouwapparatuur, 3 slaapkamers waarvan 1 met inloopkast (mogelijkheid voor 4e slaapkamer). En, wat dacht u van een fijne diepe tuin met veranda, volop zon en een separate garage. Bekijk de foto's en oordeel zelf. Interesse gewekt? Bel voor een bezichtiging!

Indeling
Begane grond:
Entree/hal met modern toilet, meterkast en trapopgang, royale uitgebouwde lichte woonkamer, bergkast en openslaande tuindeuren, eetkeuken voorzien van 5-pits gaskookplaat, koel/vriescombinatie, vaatwasser, granieten blad en afzuigkap (naar buiten).

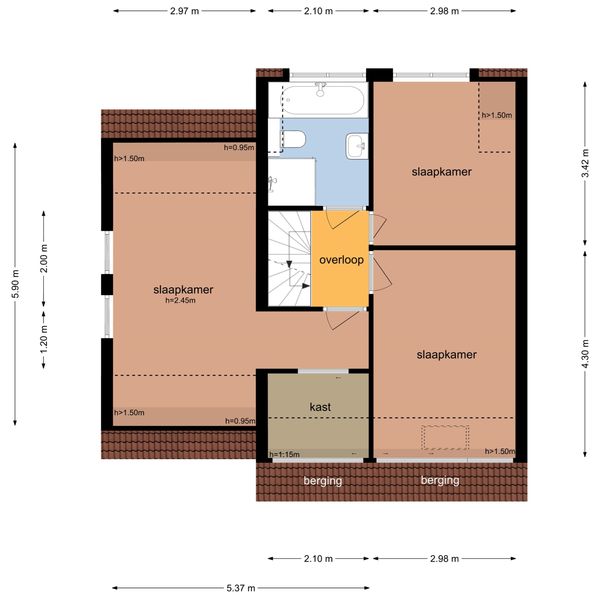
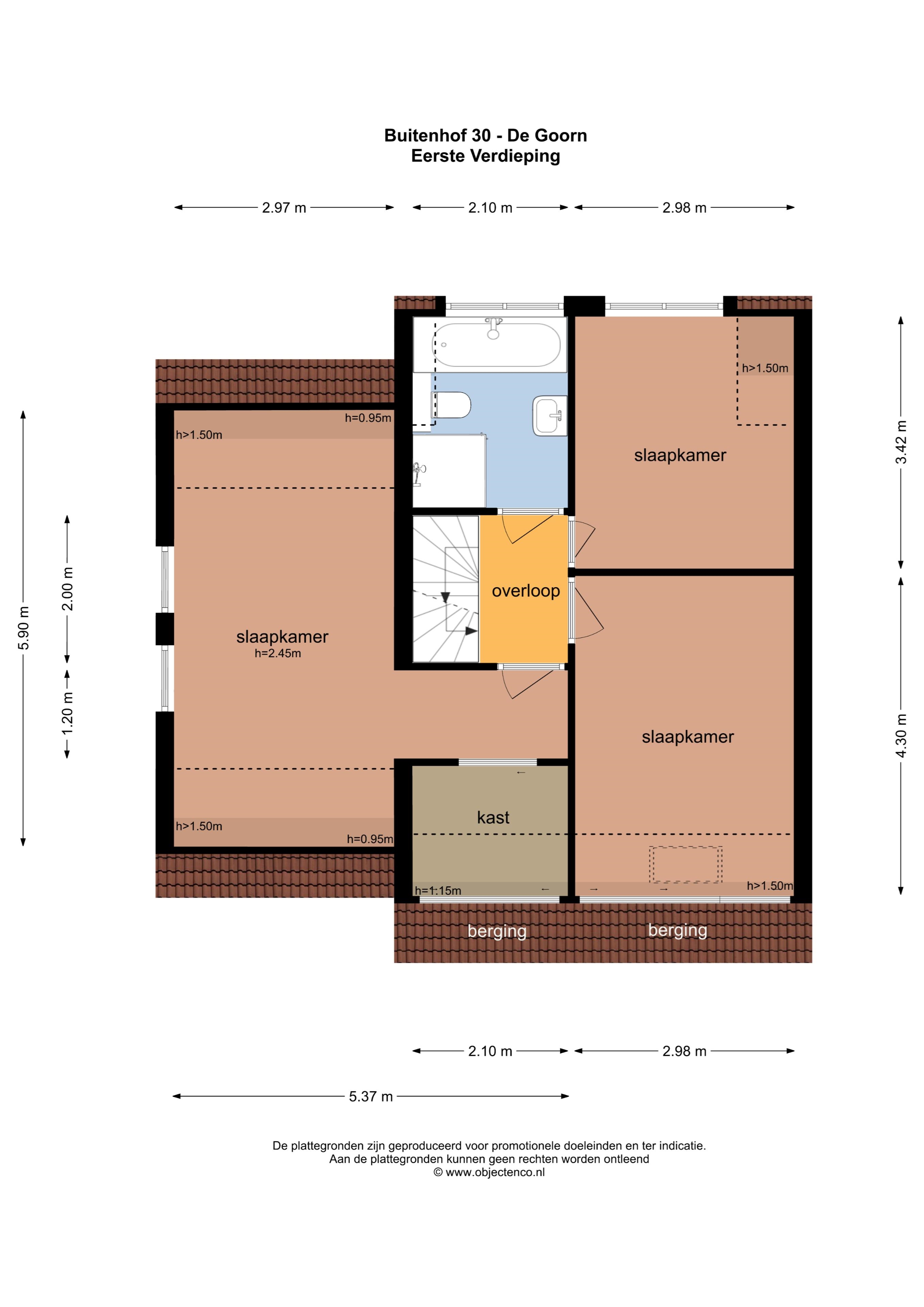
Eerste verdieping
Overloop, 3 slaapkamers: 1 zeer royale slaapkamer met inloopkast, verder nog 2 slaapkamers waarvan 1 met dakkapel, badkamer voorzien van vloerverwarming, whirlpool, douchehoek en 2e toilet.

Tweede verdieping
Vaste trap naar lichte zolder, mogelijkheid voor 4e slaapkamer.

Tuin
Heerlijke, onderhoudsarme tuin met veranda en separate garage.

Bijzonderheden
- Gelegen nabij het winkelcentrum Vijverhof
- Nabij de A7
- Zij aanbouw en opbouw gerealiseerd in 2011
- Schilderwerk 2018
- Begane grond en badkamer voorzien van vloerverwarming en natuursteen
- Vrijstaande garage
- Gezellige veranda waar je heerlijk in het avondzonnetje kan zitten

Foto's

Buitenhof 30, De Goorn
Buitenhof 30, De Goorn
Buitenhof 30, De Goorn
Buitenhof 30, De Goorn
Buitenhof 30, De Goorn
Buitenhof 30, De Goorn
Buitenhof 30, De Goorn
Buitenhof 30, De Goorn
Buitenhof 30, De Goorn
Buitenhof 30, De Goorn
Buitenhof 30, De Goorn
Buitenhof 30, De Goorn
Buitenhof 30, De Goorn
Buitenhof 30, De Goorn
Buitenhof 30, De Goorn
Buitenhof 30, De Goorn
Buitenhof 30, De Goorn
Buitenhof 30, De Goorn
Buitenhof 30, De Goorn
Buitenhof 30, De Goorn
Buitenhof 30, De Goorn
Buitenhof 30, De Goorn
Buitenhof 30, De Goorn
Buitenhof 30, De Goorn
Buitenhof 30, De Goorn
Buitenhof 30, De Goorn
Buitenhof 30, De Goorn
Buitenhof 30, De Goorn
Buitenhof 30, De Goorn
Buitenhof 30, De Goorn
Buitenhof 30, De Goorn
Buitenhof 30, De Goorn
Buitenhof 30, De Goorn
Buitenhof 30, De Goorn
Buitenhof 30, De Goorn
Buitenhof 30, De Goorn
Buitenhof 30, De Goorn
Buitenhof 30, De Goorn
Buitenhof 30, De Goorn
Buitenhof 30, De Goorn
Buitenhof 30, De Goorn
Buitenhof 30, De Goorn
Buitenhof 30, De Goorn
Buitenhof 30, De Goorn
Buitenhof 30, De Goorn
Buitenhof 30, De Goorn
Buitenhof 30, De Goorn
Buitenhof 30, De Goorn
Buitenhof 30, De Goorn
Buitenhof 30, De Goorn
Buitenhof 30, De Goorn
Buitenhof 30, De Goorn

Plattegrond

Plattegrond

Plattegrond

Plattegrond

Plattegrond

Plattegrond

Plattegrond

Plattegrond